Ман Тга Коды Ошибок Tcu 03198 08 • Наши услуги
Диагностика КПП МАН

27 Comments
Туго включаются передачи в мае тгс2014г. И пропадают повышенные или пониженные
Здравствуйте. Причин данной неисправности много. Это система управления или механика. Для точного ответа надо проводить диагностику
Поможет коллибровка сцепления, или замена датчика пгу. На нем много завязанно
Ман тгс 12 года не включается повышенный ряд демупликатора снял трубки с поршня что стоит с зади коробки включаю пониженную шепит включаю повышенную не шипит в чем может быть поломка?
Здравствуйте. Причина неисправности: клапан, электрика или система управления. Для точного ответа надо делать диагностику
Не переключается на повышенную пока не греется коробка
Добрый день после паркинга с утра тронулся включил вторую передачу поехал и больше она не выключается что можно предположить сделать
вероятно обрыв провода кпп цф механника то переключает то нет где может быть обрыв МАН тгх:
может прищлёте схему кабеля идущего на кпп
Ман тга 2002 не включает верхний ряд приборка показымает что в верхнем рыду но нет 4 и всё меняю трубки местами на коробке и появляются с 5 в верх но нижних нет
Здравствуйте. Возможно кан или электропроводка. Для точного ответа надо проводить диагностику.
Александр, причину устранили? У меня такой же ман, хотел узнать в чем была причина всего? Спасибо за ответ!
Добрый день. Авто ман ф2000. Не выключается пониженные ряд
Здравствуйте. Возможны причины как в электрике, воздухе или механике. Для точного ответа нужна диагностика
Добрый вечер MAN TGS 41.440 2012 г пробег 317200 км при включении передачи автомобиль не двигается с места, корзина ,диск , выжимной новые
Здравствуйте. Какая коробка. Калибровка сцепления проводилась?
Добрый вечер. Man TGX 18.480 ошибка Maltunction gearbox Ecu. КПП автомат стоит в нейтральном и не переключаеться. Подскажите что может быть?
РКПП ман тга пониженый крутит ,повышенный клинит? В чем причина ?
Здравствуйте У меня ман тга 2003 года у меня начил бросать половинки повышения что по посоветуете?
Здраствуйте подскажите причину на ман TGS 41.440 2017 выжим сцепления тугой!
Здравствуйте. У меня MAN TGM 2010 с коробкой ZF мкпп не показывает на панели передачи, показывает нейтраль и заднюю, в перед едешь показывает прочерг. Просмотрел все проводку она целая. В блоке FFR проявляется ошибка ( конечное число оборотов коробки передач вне допустимых пределов — 3411 ошибка).
Добрый вечер.Подскажите что и как искать ошибка FFR 03263-08 и не заводиться машина. поменял на другой блок клапанов, такая ошибка. провода все 7 прозвонил с FFR до блока клапанов,все звоняться ,машина не заводиться,ошибка таже.Подскажите.
здравствуйте! После замены диска сцепления, корзины и т.д. пониженная и повышенная передачи включются (т.е. влажок поднимаешь на рычаге) без нажатия педали сцепления . В чем причина, можете сказать?
Мануалы MAN — Мануалы на автомобили PDF, коды ошибок
- Не работает демультипликатор
- Не включается делитель коробки
- Не включается верхний ряд
- Не включается передача
- Не переключаются ряды
Не включаются повышенные пониженные передачи МАН — Эксперт-Автоэлектрик Грузовые автомобили Man TGA широко используются по всей Европе и СНГ. Эти транспортные средства получили признание автолюбителей за свою простоту конструкции и возможность самостоятельного ремонта.
Причины появления ошибки EDC
Причины, почему горит ошибка edc, и способы решения проблемы:
Если есть возможность воспользоваться сканером, то ряд причин неэффективной работы EDC можно выявить самостоятельно. Будут высвечиваться определенные цифры, говорящие о конкретной неисправности. Например, для машины MAN ошибка edc означает (расшифровка):
- 03778 10 — неправильная работа системы Common Rail, связанная с утечкой горючего в топливопроводах высокого давления (скорее всего, выбросы в «обратку»);
- 03775 02 — чрезмерно низкое давление, а если еще появляется ошибка 00094, то это может говорить, что вы заливаете при температуре минус 15 градусов в бак летнее топливо;
- 03779 — падение давления горючего происходит «благодаря» клапану рампы либо форсунке – солярка «стравливается» в обратный трубопровод.
Для грузовиков других марок – Scania, Iveco и т. д. причины загорания лампы EDC те же, разница лишь в цифровом обозначении кода ошибки для каждой конкретной модели. После успешного поиска причины зажигания лампы и решения проблемы не забудьте сбросить настройки ЭБУ. Если ремонт производился в квалифицированном автосервисе, все сделают мастера.
После самостоятельных работ отключите минусовую клемму АКБ на 10-15 минут — прошлые данные из памяти ЭБУ пропадут.

Ebs 01056 03 ошибка ман
- падение мощности – мотор не тянет, при движении появляются рывки;
- нестабильный холостой ход;
- двигатель нехарактерно «рычит»;
- выхлоп черного цвета;
- число оборотов коленчатого вала не превышает 3000;
- самопроизвольное отключение турбины, если она имеется.
MAN TG-A коды ошибок ZBR 2 на русском языке — Информация для ремонта — Каталог файлов FFR 03279-04 – нет сигнала скорости автомобиля
Мануалы MAN
| Класс вязкости масла по SAE | Максимальная температура, °C |
| 5W-30 | +35 |
| 5W-40 | выше +35 |
| 10W-30 | +35 |
| 10W-40 | выше +35 |
| 15W-40 | выше +35 |
| 20W-20 | +25 |
| 30 | +35 |
| 40 | выше +35 |
| А+ | — пробег машин больше 150000 км/г; — машины с кабиной над двигателем, тяжелая серия F 2000; — автобусы междугородних линий; — центральная система смазки; |
| А | — грузовые автомобили с пробегом больше 80000 км/г; — автобусы междугородних линий вне зависимости от пробега; |
| В | — грузовые автомобили с дижением в коротких дистанциях, с пробегом с 10000 до 80000 км/г; — автобусы местных линий вне зависимости от пробега; |
| С | — тяжелые условия работы, например строительные машины, мусоровозы, пожарные машины, машины высокой проходимости, буксировочные машины и др.; — пробег до 10000 км/г. |
Значение цветных колец на указателе уровня масла:
— красное (rot) — нормальныц объем масла;
— зеленое (grun) — увеличенный объем масла в двигателе D 28 и увеличенный объем ванны картера двигателя D 08;
| Спецификация, тип двигателя | Группа обслуживания | |||||
| А+ grun | А+ rot | A grun | A rot | B grun | B rot | |
| MAN 271 | ||||||
| D 08 | — | — | 35000 | 20000 | 30000 | 20000 |
| D 28 | — | — | 45000 | 30000 | 30000 | 20000 |
| M 3275 | ||||||
| D 08 | — | — | 45000 | 30000 | 40000 | 30000 |
| D 28 | — | — | 60000 | 45000 | 40000 | 30000 |
| M 3277 | ||||||
| D 08 | — | — | 60000 | 45000 | 45000 | 30000 |
| D 28 | 80000 | 60000 | 80000 | 60000 | 60000 | 45000 |
| M 3271 | ||||||
| E 28 (СNG) | — | — | — | — | — | 30000 |
| G 28 (LPG) | — | — | — | — | — | 30000 |

| Класс вязкости масла по SAE | Максимальная температура, °C |
| 5W-30 | +35 |
| 5W-40 | выше +35 |
| 10W-30 | +35 |
| 10W-40 | выше +35 |
| 15W-40 | выше +35 |
| 20W-20 | +25 |
| 30 | +35 |
| 40 | выше +35 |
EDC, Что Делать, Если Горит Лампа ЕДС на Приборной Панеле, Расшифрока Ошибки, Причины и Признаки Неисправности Индикатора
В Европе постоянно ужесточаются экологические требования, и новый стандарт «Евро 6» не является исключением. Поэтому эксплуатация дизельного двигателя в ЕС без едс невозможна.
Система EDC: что это и из чего она состоит

Related Questions:
Заправочные объемы ман тга Попробуйте тут выбрать ваш автомобиль, в разделе Топливо обычно указы масла и жидкости и их объем.
Как выявить причину потери давления
МАН плохо заводится на горячую, остывший, глохнет на ходу из-за низкого давления (компрессии). Есть 4 места утечки:
- повреждение прокладки, головки ГБЦ двигателя;
- разгерметизация впускного клапана;
- износ выпускного клапана;
- поршни, поршневые кольца.
Затем проверяется ТНВД. Если на машине не установлен катализатор, то эффективность работы насоса можно проверить по наличию капель топлива в выхлопной трубе. Еще один вариант – убрать элемент накаливания (если он есть), активировать форсунки, чтобы увидеть, как распыляется топливо. Подробнее о диагностике Ман можно прочитать тут.

Re: ZBR отказ
Re: ZBR отказ Сообщение bansai » 30 янв 2015, 09:32
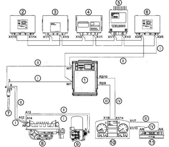
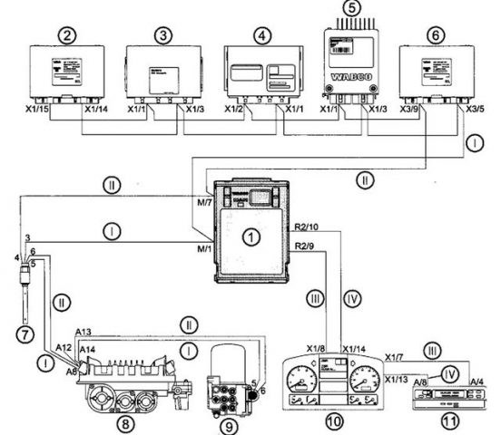
Схема электрооборудования двигателя
Чтобы понимать устройство электрооборудования, стоит рассмотреть схемы его подключения, а также расшифровки показателей.

Схема подключения электросистемы двигателя MAN TGA EDC7 Common-rail.
- центральный бортовой компьютер А302
- управляющий процессор автомобиля А403
- электронная тормозная система А402
- тормоз замедлитель А144
- электронная пневматическая подвеска А143
- спецмодуль заказчика А312
- датчик уровня масла А311
- система электр.управл.коробкой передач AS-Tronic А330
- электронная пневматическая система А409
- дисплей на приборке А407
- тахоспидограф А408
Признаки появления ошибки EDC
- рывочки при езде, пропадает тяга;
- прыгают холостые обороты движка;
- издает авто громкие «рычащие» звуки;
- появляется чрезмерное количество черного дыма из трубы выхлопов;
- останавливается движок при резком давлении на акселераторную педаль, в частности на скорости;
- большой показатель оборотов движка — 3000;
- силовое отключение турбинки (если она имеется).
Расшифровка по Коду часто встречающихся ошибок Сообщение bansai » 30 янв 2015, 09:32
Related Questions:
Ffr meaning for man truck?
What is FFR Diagnosis
How to change belt
Чтобы понимать устройство электрооборудования, стоит рассмотреть схемы его подключения, а также расшифровки показателей.

Схема подключения электросистемы двигателя MAN TGA EDC7 Common-rail.
- центральный бортовой компьютер А302
- управляющий процессор автомобиля А403
- электронная тормозная система А402
- тормоз замедлитель А144
- электронная пневматическая подвеска А143
- спецмодуль заказчика А312
- датчик уровня масла А311
- система электр.управл.коробкой передач AS-Tronic А330
- электронная пневматическая система А409
- дисплей на приборке А407
- тахоспидограф А408
Related Questions:
Как определить неисправность с помощью комплексной диагностики проблема с проводкой (перетерлись провода, окислились контакты и т.д.)
Расшифровка по Коду часто встречающихся ошибок
Вторичный ретардер (RET S): RET S 04001 — ошибка клапана накопителя.
Блок управления коробкой передач (TCU): TCU 03117 — ошибка настройки сцепления.
Центральный бортовой компьютер (ZBR): ZBR 04402 — датчик числа ходов насоса централизованной смазочной системы.
Если бортовой компьютер показывает поломку, то не стоит пытаться устранить неисправность самостоятельно без должного опыта. Такие действия могут всё усложнить и привести к более дорогостоящему ремонту.
Специалисты официального сервисного партнера MAN «Собер-Грин» рекомендуют обращаться для ремонта только в авторизованные сервисные центры. Только в этом случае будет корректно диагностирована причина поломки, вам будут установлены оригинальные запасные части и предоставлена гарантия на проведенные работы.

Технические характеристики мотора
- рывки в движении, пропадание тяги;
- прыгающие холостые обороты двигателя;
- издавание машиной громких “рычащих” звуков;
- появление чрезмерного количества черного дыма из выхлопной трубы;
- остановка двигателя при резком надавливании на педаль акселератора, в том числе на скорости;
- максимальное значение оборотов двигателя — 3000;
- принудительное отключение турбины (при ее наличии).
Сеть Станций Технического Обслуживания ZBR 04021-10 -дополнительный дальний свет слева.
