Лампочка Заднего Хода не Горит Рено • Реле вентилятора
АКПП встает в аварийный режим: причины и способы устранения
В таком режиме категорически запрещено длительно использовать автомобиль. Необходимо срочно обратиться к специалистам за диагностикой и дальнейшим ремонтом, иначе больших проблем с автоматом не избежать.
Причин образования поломок, из-за которых коробка встает в аварийку, очень много. Мы рассмотрим самые основные.
Слишком высокие или низкий уровень трансмиссионной жидкости становятся самой основной и частой причиной выхода АКПП в аварийный режим. ЭБУ коробки анализирует уровень масла, и если он неправильный, сразу выводит узел в аварийку.
Снижение объема масла может образоваться из-за течи, которая образовалась вследствие механических поломок или допущенных ошибок в течение техобслуживания. Чрезмерно большое количество масла приведет к его вспениванию и течи. Масло начнет заливать все ближайшие детали, что также приводит к проблемам работы автомата.
Аварийка может включиться в случае механических поломок корпуса трансмиссии, износа фрикционов, неисправностей гидротрансформатора и т.п. Электронный блок управления фиксирует некорректную работу детали и оповещает об этом. В таком случае необходимо срочно обратиться к специалистам по ремонту АКПП.
Поломки в электронном блоки управления негативно отображаются на работе коробки передач, вплоть до ее полной блокировке и стопе. Поломка может быть постоянной или стихийной. Например, на холодном масле узел может работать нормально, но при повышении температуры в системе выходить в аварийку. Это может говорить о сбое температурного датчика, который нужно заменить.
Если во время движения автоматическая коробка передач вышла в аварийный режим, авто едет только на одной скорости, а остальные заблокированы, но нет возможности в данную минуту поехать в СТО, рекомендуем провести следующие манипуляции:
- Срочно остановить автомобиль, припарковав в безопасном месте. Первое, что нужно сделать — проверить уровень масло с помощью щупа, если он предусмотрен комплектацией коробки. Вытекающее масло ярко-красного цвета, а также запах гари говорит о неправильном уровне масла. Не рекомендуется начинать движение — безопаснее вызвать эвакуатор и поехать на станцию технического обслуживания;
- Если отсутствуют признаки проблем с маслом, проверьте проводку, контакты. Если будет обнаружен плохой контакт и исправлен, вероятнее всего, коробка выйдет из аварийного режима;
- Заглушить мотор и на несколько минут выключить зажигание. Если такие манипуляции не помогли, то на 3-4 минуты выключить минусовую клемму аккумулятора. Нередко в ряде автомобилей такие простые манипуляции помогают коробке выйти из аварийного режима.
Если же вышеперечисленное не помогло, но вы уверены, что уровень масла в норме, продолжайте движение в автомастерскую. Не рекомендуется набирать скорость, маневрировать, стоять в пробке и повышать нагрузки на АКПП. Первоочередная задача — приехать на СТО и сделать диагностику.

АКПП встает в аварийный режим: причины и способы устранения — Юлия Афенова на vc. ru
Почему не убирается паркинг на коробке автомат, причины | Неправильное передаточное отношение отдельных передач;
АКПП: устройство
Данное устройство — это разновидность трансмиссии, который автоматически выбирает нужное передаточное число подходящее по скорости движения.

- Корпус гидравлического трансформатора.
- Ведомое колесо (турбинное).
- Реакторное колесо.
- Ведущее колесо (насосное).
- Масляный насос.
- Обмотки возбуждения электродвигателя.
- Блокировочная муфта гидротрансформатора (сцепление).
- Демпфер.
- Картер гидротрансформатора.
- Корпус коробки передач.
- Фрикционные диски блокировочной муфты.
- Корпус блокировочной муфты.
- Планетарный редуктор.
- Фланец ведомого вала коробки переключения передач.
- Поддон картера.
- Гидравлические клапаны системы управления включением передач.
- Клапанная коробка.
Сделай мне плавно: как быстро и недорого отучить АКПП пинаться — – автомобильный журнал
- Прогреть мотор, поездить со скорость выше 20 км/ч.
- Остановиться. Заглушить мотор. Ключ зажигания оставляем в замке.
- Включить зажигание, но не запускать стартер.
- Выключить зажигание.
- Поставить селектор в положение Д, применяя аварийную кнопку. Включить также hold. При этом Power не надо трогать.
- Включить зажигание.
- Селектор выставляем в положение 3 и выключаем hold.
- Ставим селектор в положение 2 и включаем hold.
- Селектор ставим на 1 положение и выключаем hold.
- Нажать на педаль газа на 2/3, то есть больше половины. Подождать 4 секунды.
- Наблюдаем за индикатором Power. При моргании замедленном, то надо прочитать ошибки. Если моргает Power часто, то ошибок нет.
Предохранители Рено Меган Сценик 1 поколения: схемы блоков Для комментирования вам необходимо авторизоваться
Процесс замены
Конструкция блока под капотом на автомобилях Рено Меган крайне неудобная, поэтому процесс замены может вызывать некоторые трудности.
Как заменить предохранитель?
Наиболее трудоемко поменять предохранители на Рено Меган 2 в блоке моторного отсека.
- ключи TORX T40, Т30;
- обычный ключ на 10 и 13 мм;
- отвертка с плоским и тонким жалом;
- запасные предохранители;
- щипцы для снятия, они расположены под крышкой блока в салоне.
Для непосредственного доступа к плавким вставкам необходимо снять ряд элементов с машины.
Например, на Меган с кузовом универсал нужно выполнить следующее:
Кроме этого, в случае необходимости нужно заменить вставки в маленьком блоке высоконагруженных цепей. Этот блок виден в нижней части корпуса, который не демонтирован с автомобиля.
Весь процесс по замене предохранителя на Рено Меган 2 детально изложен в видеоролике, предоставленном каналом Полезный Китай.
При замене предохранителей необходимо учесть, что на Меган первого и второго поколения деталь просто вытаскивается вверх штатными щипцами. На Мегане третьего поколения он сначала сдвигается вбок и только потом вынимается.
При поиске неисправного предохранителя на Меган 3 необходимо тщательно изучать схему. Например, каждый стоп-сигнал машины получает питание по отдельной цепи и имеет отдельный предохранитель в салонном блоке.
Доступ к электрооборудованию на таких машинах организован проще.
Для того, чтобы демонтировать блок необходимо:
- Отстегнуть четыре защелки по углам.
- Демонтировать два фиксатора красного цвета.
- Снять заглушку проводки.
- Вынуть блок на себя и заменить необходимые детали.
Как заменить блок?

| Номер | Ток, А | Назначение |
| a | 70 | Подача питания без отключения во время пуска мотора |
| b | 70 | Подача питания с отключением во время пуска мотора |
| C | 40 | Обогрев стекла |
| D | 20 | Звуковой сигнал в руле |
Где находится датчик заднего хода рено меган 2
Предохранитель и реле стартера

Выбираем новый выключатель фонарей
Замена датчика включения задней передачи — Renault Megane, 1.5 л., 2009 года на DRIVE2 Отдельно следует рассмотреть плавкие вставки и реле, устанавливаемые в салоне автомобиля.
Датчик заднего хода — Renault Megane, 1.6 л., 2006 года на DRIVE2
В последнее время после долгой остановки, стал замечать пятна какой-то жидкости на земле.По началу думал совпадение, но мысль о «многоразовом» совпадении покоя не давала и все же решил посмотреть.
В гараже на ночь снял защиту, разбросал под двигателем бумагу и спокойно ушел домой.Но прийдя рано утром, дрожь пробежала не один раз и в мыслях одно — бежит масло.
Реально было уже понятно в чем причина, но я даже и подумать не мог, что это он, поскольку при включении задней передачи, фанари горели то есть он рабочий.
Для решение проблемы приобрел:
— Датчик заднего хода Facet 7.6245 — 550 грн
— Масло TRANSELF NFJ 75W-80, 1Л — 190 грн
— Шприц 50г — 6 грн.
Шприц нужен для залива масла в коробку т.к. места просунуть лейку там нет.

Megane III
Блок под капотом

Замена датчика заднего хода Рено Меган 2: подробный мануал
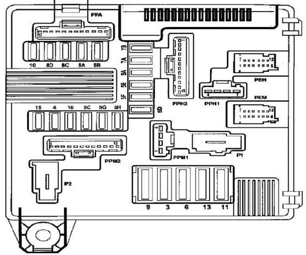
Текст АКПП с годом выпуска позже 1998 года: На всех поколениях Renault Megane применяется электрическая проводка с двумя раздельными блоками предохранителей. Один из них расположен в нижней части панели приборов в районе колена левой ноги водителя. Второй — установлен в подкапотном пространстве.
Что может пойти не так?
О том, что есть вероятность внезапной необходимости заменить гидроцилиндр и заднюю крышку, я уже сказал. Но есть ещё одна небольшая сложность.
Если кто-то из предыдущих владельцев уже вкручивал самый длинный из всех регулировочных болтов, после установки новой ленты могут возникнуть сложности с включением третьей или задней передач. В этом случае нужно поставить болт на полтора-два размера короче того, что стоит у вас. В крайнем случае — слегка (на 0,5 — 0,75 мм) подточить существующий.
И, конечно же, не надо надеяться, что коробка со сгоревшими фрикционами и загаженным гидроблоком после замены ленты вдруг начнёт работать как положено. Но об этом мы поговорим как-нибудь другой раз.
Для комментирования вам необходимо авторизоваться

Спасибо за комментарий. Отчасти соглашусь лишь с замечанием по поводу гидроцилиндра, который действительно выполнен в картере. И всё же при сильном замасливании ленты шток цилиндра меняют. Втулку тоже иногда ставит, да. Остальное комментировать не буду. И чисто ради любопытства: ГДТ для какой АКПП Вы проектировали?
Ну сказали бы, что утечка по штоку чревата ударами при включении четвертой, потому что гидравлическая схема предусматривает уравнивание давления подачей масла в область перед поршнем при включении третьей передачи, а не отключением подачи за.
Я бы уточнил, что износ отверстия под шток (сам шток изнашивается гораздо меньше) вызывает пробуксовку переключения со 2 на 3 передачу.
Спасибо за ответ. Да, это самые успешные коробки в мире.
Aisin TF80SC, на горячую после длительной езды по пробкам при включении задней — удар. Если без пробок размеренная езда или трасса — все норм. На холодную все норм. Сами передачи переключаются плавно даже на горячую. В чем может быть дело?
К сожалению, без диагностики тут ничего конкретного (или хотя бы умного) сказать невозможно. Но зная склонность этой АКПП к адаптивности, могу посоветовать только перед включением задней делать паузу в несколько секунд в N, а потом включать R. ПО идее, должна обучиться и перестать толкаться. На некоторых Вольво помогает. Если нет — то на диагностику.
Тут причин множество.В том числе — просто неравномерная работа мотора на этих оборотах. Думаю, без диагностики Вы проблему выявить не сможете.
Повороты
Scenic 2: реле свечей накала Находится под номером 30 в салоне. Отдельные пользователи устанавливают дополнительную розетку и выводят ее на заднюю часть авто. Здесь найти защитную вставку будет сложнее. Ориентироваться следует по магистрали.
Как снять и заменить блок предохранителей Сценика и Мегана 1
- Открыть крышку панели, предварительно обесточив автомобиль.
- Дальше потребуется действовать в зависимости от модификации авто. От пользователя нужно найти и отщелкнуть пластиковые фиксаторы панели или выкрутить крепежные винты.
- Блок аккуратно вытягивается с посадочного места и на задней стороне отключается контактная клемма проводки. После этого, деталь можно полностью снять с машины.
Последовательность действий неизменна для салонного и подкапотного блока предохранителей и реле.
Основные предохранители автомобиля удобно разделены на отдельные модули. Подобное расположение повышает надежность и положительно сказывается на простоте обслуживания авто.
Специализация: Закончил государственный автомобильный университет, проработал 20 лет на ГАЗ-56, сейчас езжу на жигулях.

Тест коробки автомат до 1998 года выпуска сканером OBD-1 или OBD-2 проводят в следующем порядке:
Почему не снимается с паркинга в АКПП

Видео «Замена предохранителей Renault Megane 2»
Как снять и заменить блок предохранителей Сценика и Мегана 1 Данное устройство — это разновидность трансмиссии, который автоматически выбирает нужное передаточное число подходящее по скорости движения.
